Sunday, May 30, 2010

Floor plans

I just realized that I never included the floor plans in the blog.



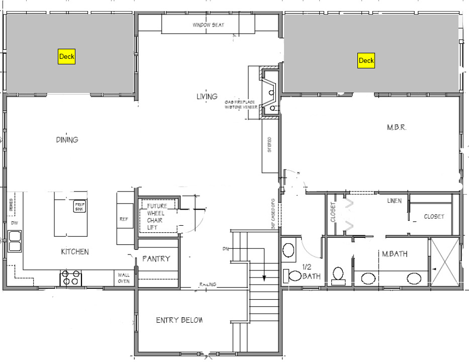
Second floor-- all living areas up to maximize the view. Click to enlarge picture.



First Floor-- entry. The bedrooms will be used as our offices. Click to enlarge picture

1 comment:

Stan Booth said...

Mistery? I see a ground floor plan and a first floor plan, no second floor, but that's from a UK view point. regards Stan.